Geen categorie

Bouw volgens plan!
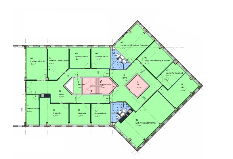
In samenwerking met bouwbedrijf Jac Tromp is er in een kort tijdsbestek een ontwerp, calculatietekeningen en een calculatie gemaakt voor het opnieuw inrichten van een leegstaande verdieping.
Deze verdieping wordt opnieuw ingericht met kantooreenheden, een bedrijfskantine en verschillende spreekkamers. Het management team van stichting Alkcare zal zich hier gaan vestigen. Op korte termijn zal de realisatie gaan starten.



The Giant