Geen categorie

Aanvraag omgevingsvergunning Alkcare
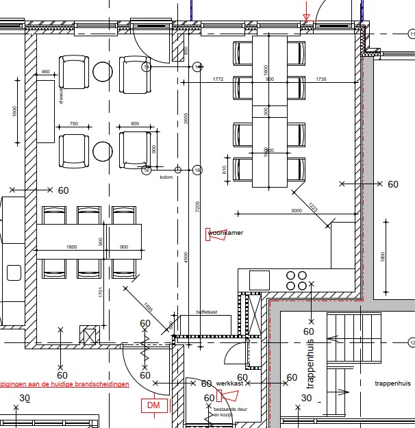
Voor “De Oldenburgh” te Oudorp heeft Bouwburo Giant voor voor stichting Alkcare een omgevingsvergunning aangevraagd voor het ombouwen van appartementen tot een gezamenlijke woonkamer. De wens van Alkcare was om op elke verdieping een woonkamer te creëren voor algemeen gebruik. Door de extra woonkamer kunnen de bewoners op hun eigen verdieping blijven. Zo zijn ze niet meer verplicht om naar de grote kantine op de b.g.g. te gaan.

The Giant